歡迎來到浙江國盟電力成套設備有限公司企業官網!
咨詢熱線:0577-62710822TEL:0577-62710822
1010717522@qq.com

XGN15-12(F)、XGN15-12(F?R)箱式固定交流金屬封閉開關設備(一下簡稱“開關設備”),用于額定電壓12kV、額定電流630A及以下的環網供電或輻射型供電系統中,尤其適合裝入預裝式變電站作為電力系統的控制和保護。本產品內裝絕緣外殼的FLN36-12D型六氟化硫負荷開關或FLRN36-12D型負荷開關——熔斷器組合電器,具有體積小、重量輕、操作簡便、操作力輕、聯鎖可靠、免維護等特點,是城市電網改造和建設需要的新一代高壓開關設備。
本產品符合:GB3906《3~35kV交流金屬封閉開關設備》、GB/T11022《高壓開關設備和控制設備標準的共用技術要求》,IEC60298《額定電壓1kV以上50kV及以下交流金屬封閉開關設備和控制設備》,DL/T404《戶內交流高壓開關柜訂貨技術條件》標準。
型號及其含義
正常使用條件下
◎ 周圍空氣溫度:-15℃~+40℃;
◎ 海拔高度:1000m及以下;
◎ 濕度條件:
日平均值不大于95%,水蒸氣壓力日平均值不超2.2kPa;
月平均值不大于90%,水蒸氣壓力月平均值不超1.8kPa。
◎ 地震烈度:不超過8度;
◎ 沒有腐蝕性或可燃性氣體等明顯污染的場所。
注:超出上述正常使用條件時,用戶可與本公司協商。
結構
開關設備由柜體、主開關(SF6負荷開關或組合電器)、接地開關、儀表室、母線及其它電器元器件和輔助元件組成。
柜體由敷鋁鋅鋼板經模數化成形組裝而成。柜背后設有泄壓通道,在出現內部故障時保護操作人員。
母線室的母線覆合絕緣,直接連接在負荷開關的接線端子上。三相母線按縱向排列,使得開關設備左右可任意擴展,極易變換其布局。
儀表室位于開關設備的上部,室內可裝設電流表、電壓表、指示燈以及電動操作機構等。

開關設備具備以下聯鎖:
◎ 負荷開關在合閘位置時,接地開關操作被鎖??;
◎ 接地開關在合閘位置時,負荷開關操作被鎖?。?BR> ◎ 只有當接地開關合閘時,才允許打開環網柜前門,其它情況下前門被鎖住。
操作
對于配負荷開關的開關設備,用專用操作手柄在開關設備正面操作,操作機構的正面上、下兩操作孔,上部為接地開關操作孔,下部為負荷開關操作孔。操作時,手柄向順時針方向旋轉為開關合閘方向,逆時針方向旋轉為開關分閘方向。也可加裝電動分、合閘裝置,進行遙控操作。(注意:有時負荷開關不帶接地開關,接地開關操作孔被當做柜門解鎖之用)。
對于配組合電器的開關設備,除負荷開關分閘操作用手動分閘按鈕外,其它與上述操作順序一樣。組合電器柜另設的下接地開關,通過連桿與上接地開關同分同合。在合閘時釋放下熔斷器座上的殘余小電流,以提高更換熔斷器時的安全性。
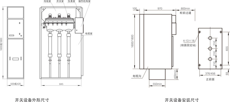
外形及安裝尺寸
訂貨須知
◎ 主電路方案編號、主結線系統圖、排列圖、平面布置圖。
◎ 輔助回路電氣原理圖、端子排列圖。
◎ 開關設備內電器元件的型號、規格、數量。
◎ 備品、配件的名稱及數量。
◎ 有特殊要求請與本公司協商。